南京航空航天大学
第四届“万龙杯”大学生机器人大赛通知
为加强南航学子对科研和工程实践的训练,培养大学生的创新能力、理论知识应用能力、动手能力和团队合作能力,特举办校第四届机器人大赛,相关工作通知如下:
一、组织机构
主办: 南京航空航天大学教务处
南京航空航天大学学生处
南京航空航天大学团委
承办: 色情动漫
南京航空航天大学将军路校区管委会
赞助:福建万龙金刚石工具有限公司
二、比赛内容
1、竞技类:机器人灭火比赛(规则详情见附件3)
2、展示类:个人自主创新作品(规则详情见附件4)
三、日程安排
11月3日18:30 试题发布会(将军路校区6101教室)
11月4日―11月9日 报名
11月10日―11月15日 专家初评、公布立项结果
11月16日―12月16日 各参赛队制作、调试作品
12月16日 参赛作品封存,并提交技术报告
12月中旬 作品现场展示、比赛
四、报名方式
1、南京航空航天大学在读本科生、研究生均可报名,鼓励跨学院自由组队,每队2―4人。
2、报名表(见附件2)填好后,电子版于2011年11月9日中午14:00前发至邮箱[email protected],文本版将军路校区报色情动漫
辅导员办公室(教育超市二楼212),明故宫校区报色情动漫
楼B311房间。
五、奖项设置和资助形式
1、参赛作品由学生自主申报,但必须有专业教师担任指导教师,经专家评审,视作品的可行性及创新性等指标,给予作品500元或300元的立项资助。
2、本次大赛两个类别各设一等奖一名,二等奖两名,三等奖三名,另设最佳组织奖和创新奖,对于获奖的作品在立项的基础上追加奖励。
具体细节由大赛承办部门负责解释。
南京航空航天大学机器人大赛工作组
二�一一年十月
附件2:报名表
南京航空航天大学大学生机器人大赛报名表
参赛队名 | 类别 | |||
队长姓名 | 队长学号 | |||
队长手机 | 队长电子信箱 | |||
队员资料(不包括领队) | 学号 | 姓名 | 专业 | |
参赛作品 简介(可附页) | ||||
参赛作品所需设备/器件 | 例: 1.器件名称+功能+价格 2.器件名称+功能+价格 3.器件名称+功能+价格 | |||
指导教师意见 | 签字: 日期: | |||
学院团委意见 | 盖章 日期: | |||
附件3:机器人灭火比赛规则
1、竞赛目的
制造一个计算机控制的机器人,机器人在一间平面结构房子模型里运动,找到一根蜡烛并尽快把它熄灭,这个工作受多个因素影响,它模拟了现实家庭中机器人模拟火警的过程,那个蜡烛代表家庭里燃起的火源,机器人必须找到并熄灭它。
2、比赛场地
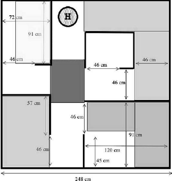
比赛场地将采用国际标准比赛场地,其具体的尺寸如下图。比赛场地的墙壁高33cm,由木头做成。墙壁刷成白色。比赛场地的地板是被漆成黑色的光滑木制板。在所有的房间和走廊的地板上,可能会铺有小地毯,不会有粗毛地毯。场地中所有的走廊和门口都是46cm的开口,将会有一个白色的2.5cm宽的白色带子或白漆印迹表示房间入口。
在比赛中,有一些机器人可能会用泡沫,粉末或其他的物质来熄灭蜡烛的火焰,裁判会在每一个机器人比赛后尽可能清洗好场地,但是不能保证地板在整个比赛过程中都保持干净。机器人将从一个标有“H“的代表起始位置的圆圈开始。真实的代表起始位置的白圈是实心的,不标记“H”。30cm直径的白色圆圈在46cm走廊的中心,也就是说在圆圈和墙壁中间将有8cm的空间。因此圆圈圆心在离两边墙壁24cm的地方。机器人必须在圆圈中启动。

3、场地照明
比赛场地周围的照明等级在比赛时才能确定。参赛者在比赛期间有时间了解周围的灯光等级及标定机器人。在第一天调试设定后,比赛的照明将不会在调整来满足个别参赛者的要求。比赛的挑战之一就是要求机器人能够在一个不确定照明、阴影、散光等实际情况的环境中进行。
4、机器人运行
机器人一旦启动,必须在无人的干预下自, 己控制,也就是说是自主控制,而非人工控制。机器人在运行过程中可以碰撞或接触墙壁,但是不能标记和破坏墙壁,如果碰到墙壁将会被扣分。机器人不能在比赛场地中留下任何可以帮助它运行的标记。如果裁判认为机器人故意破坏了比赛场地(包括墙壁),机器人将被取消资格,当然这不包括运动中以外的标记或刮檫。机器人在熄灭蜡烛前必须已经找到了它,而不是碰巧喷出二氧化碳熄灭了蜡烛。
5、熄灭蜡烛
机器人不能运用任何破坏性的或危险的方法来熄灭蜡烛。它可以运用类似水、空气、二氧化碳等,禁止使用任何危险的或可能破坏比赛场地的方法或物质。比如通过使燃放爆竹产生冲击来使蜡烛熄灭等,也不能通过碰倒蜡烛而使蜡烛熄灭。蜡烛在燃着时不允许被撞倒。为了使蜡烛不因水或空气而轻易倒下,我们把它放在木质基座上。机器人扑灭蜡烛的过程中的所造成的混乱(水,发酵粉,生奶油等)将在比赛间歇由裁判员清理干净。
近来,灭火技术的发展可以使机器人在很远的地方扑灭蜡烛,这种在很远距离扑灭蜡烛的能力与机器人寻找发现火焰的智能比赛目的不相符。为了实现竞赛的真正目的,机器人在试图扑灭火焰前必须到距火焰30cm以内。在距离火焰30cm的圆上有一条2.5cm宽的白线,机器人在扑灭火焰前必须有一部分在圆圈内,但此时机器人不能碰倒蜡烛。
6、机器人尺寸
机器人最大的尺寸必须是30cm×30cm×30cm。机器人不能看到建筑物墙壁另一面的东西,机器人在比赛时不能分离,且不能超出允许的30cm范围。
如果机器人有触角探测物体或墙,这些触角也算做机器人的一部分。假如参赛者想在机器人上加旗帜、帽子或其他纯装饰性的没有任何传感器作用的部分,必须保证所加的东西对机器人的运行控制没有任何影响。
7、机器人的重量
机器人的重量没有限制。
8、机器人的建造材料
机器人的建造材料没有限制。
9、蜡烛
蜡烛火焰的底部离地面15cm~20cm高,这高度包括支持蜡烛的木质基座。蜡烛是直径大约为2cm粗的白蜡烛。蜡烛火焰的确切高度和尺寸是不确定的,变化的,由蜡烛条件和周围的环境所决定,当蜡烛的火焰在上述的规格范围内,则要求机器人能发现蜡烛,而不管这时火焰具体是什么尺寸。
蜡烛将随机地放在比赛场地的一个房间里。在机器人所经历的3轮比赛中,蜡烛将被等概率的放在4个房间的任何一间。理想的情况在每轮比赛中将蜡烛放在不同的房间里以测试机器人的运行,但是也可以将蜡烛放在一个房间里两次。如果蜡烛第一轮和第二轮比赛时放在同一房间里,则应确保在第三轮也就是最后一次的比赛中蜡烛不放在那个房间里。因此在机器人3轮比赛中,蜡烛至少在两个房间里或三个房间里。
蜡烛将被安装在一个漆成黄色的木质基座上(7cm×7cm×3cm)。这个基座用来防止蜡烛倾倒。
10、传感器
在不违反其他规则和规范的情况下对传感器的型号,数量没有限制。禁止参赛者在墙上或地上放置任何标记,灯塔或反射物来帮助机器人导航。参赛者应意识到现代相机与摄像机通过发射红外光进行自动聚焦,比赛场地周围采用的是高压钠灯。如果机器人使用光线传感器找蜡烛或探测墙壁和家具,设计者应采取措施避免这些光源对它的影响。
11、电源
大赛电源为交流220V,50Hz。如果你的机器人或计算机需要电力,请带好足够长导线的插座。
12、导线
如果机器人需要外部提供电源,应使导线足够长,可以让机器人可以到达比赛场地的每一个区域。导线可以拖在行进的机器人后面或者由裁判提在空中。
13.比赛顺序
机器人通过编号来确定比赛先后次序。所有机器人必须按照排好的顺序进行比赛。在所有机器人进行完第一轮的比赛后再开始第二轮的比赛。
在两轮比赛之间参赛者可以调整、修改和修理机器人,但不允许更换机器人。前一个机器人比赛之后,后一个参赛者有二分钟时间进入赛场并启动自己的机器人。二分钟内没有准备好的机器人将丧失这次测试机会,但不影响剩下的比赛机会。比赛顺序一旦排好就不再改变。每一轮的比赛时间不是固定的,它取决于其他参赛者完成比赛的时间。
参赛队员进入比赛场地后,将机器人准备之好后放入比赛场地,示意裁判如何开动机器人,然后进行抽签确定蜡烛和家具的位置并放好,最后由裁判来启动机器人进行比赛。
14、比赛限制
机器人找到并熄灭蜡烛的最长时间为3分钟。在3分钟之后比赛将被终止。机器人回家的最长时间为2分钟。如果机器人在比赛中进入转圈状态,并且转了5个同样方向的圈,则本轮比赛将被终止。任何时候机器人超过30秒没有移动,则比赛将被终止。机器人如果被终止比赛将得不到本轮分数,但不影响机器人下一轮比赛。在比赛中,机器人撞倒蜡烛或家具,机器人推动蜡烛或家具超过3cm,本轮比赛无成绩。
15、得分
得分 =(实际时间+罚分)× 模式系数 × 房间系数
在本次比赛中,每个参赛队伍有三轮比赛机会,成绩取三次得分中两次好的得分相加。得分最低的机器人是优胜者。最后得分的计算取决于以下阐述的许多因素。
16、运行模式
对于所有比赛,得分越低,成绩越好,最简单的运行方式是标准运行模式。参赛者可以选择6种运行模式中的一种或几种来减少本轮得分。标准运行:这种模式下,机器人运行在除了墙以外没有其它障碍物,没有斜面的比赛场地上。机器人靠人工启动(开始寻找蜡烛)。在找到并熄灭蜡烛后,比赛结束。标准模式得分系数是1.0。
声音启动:这种模式下,机器人不是由人工按按纽来启动,而是接收到3.0~4.0 kHz声音信号后启动。一旦机器人电源打开,只有发出声音机器人才会启动。参赛者可以手拿声音发生装置在机器人周围任意距离的地方,有五秒钟的时间完成机器人的启动。如果没有接收到声音时机器人就启动,或错误地检测到周围环境的噪声(即使是其他赛场用于启动机器人的声音)而启动,那么本轮比赛仍然有效,但机器人不能作为声音启动模式来计分。如果机器人不能响应声音信号,那在本次测试中将不会给第二次机会(如再次按声音键)来运行声音启动模式,这种情况下,机器人就不能算声音启动模式了。比赛计时从声音信号发出时开始,而不是从机器人对声音信号做出响应开始。比赛中的发生器由参赛队员自备。声音启动模式的得分分数是0.95。
回家模式:机器人熄灭蜡烛后回到代表起始位置的圆圈内。这里不要求按原路返回及选择最优路径,只要回来就行了,但在回家路上不能进到房间里。如果机器人的任何一部分进入代表起始位置的30cm白圈内,就认为机器人回到了家中,而不必和刚开始的位置一样。如果机器人没有回到代表起始位置的圆圈中或回家时间超过2分钟,机器人就不能算回家模式了。实际时间分数只包括机器人找到并熄灭蜡烛的时间,不包括机器人回家的时间,回家模式的得分系数是0.8。
非推测导航模式:采用非推测航行法模式,将在比赛场地的走廊中摆放斜坡来改变到房间的距离。比赛中可能有多个斜坡。斜坡放在走廊上,而不放在房间里,斜坡完全占满走廊。斜坡的数量和位置在比赛中是变化的。斜坡高度不大于5cm。斜坡与地板的连接处是光滑的,没有台阶和较大的下降。机器人比赛开始前不知道斜面的确切尺寸与形状。斜坡的最大斜率是13度。斜坡颜色和地板一样。非推测导航模式的得分系数是0.8。
家具模式:这种模式下每个房间里有一件或多件家具。这件家具随意地放在房子里。机器人可以接触摸家具,但是不能推开家具。家具是用11.5cm直径涂了黄色的钢柱,柱高30cm,重量大于2公斤。家具也许会挡住机器人看蜡烛的视线或者机器人要绕过家具才能发现蜡烛,这增加了比赛的趣味性、真实感和挑战性。家具模式的得分系数为0.75。
灭火模式:由于使用风扇灭火在现实世界中并不实用,因此,如果参赛者不使用吹风灭火的方式将火灭掉,会有0.85的系数,使用吹风灭火机器人的得分系数为1.0 。
17、处罚
接触墙壁:机器人用身体的任何部分或触角接触墙壁,不论是的有意的还是无意的,都受处罚,一次加1分,机器人每贴着墙壁滑动2cm加1分。扑灭蜡烛后返回出发位置过程中接触墙壁不加分。
接触蜡烛:机器人用身体的任何部分接触蜡烛或其基座,不论是有意还是无意的都加50分。如果是在灭火过程中(如果用湿的海绵来灭火)或者是蜡烛熄灭后碰到蜡烛,将不予以处罚。接触部分指机器人本体部分,不包括机器人作不灭火的水、气体或其他东西。
18、房间系数
为了使比赛更具真实性同时鼓励创造更聪明的机器人,我们有意识增加了比赛的不确定性。
机器人不知道蜡烛到底在四个房间中的哪一个里面!有时在机器人搜索的第4个房间里。在第4个房间发现蜡烛要比在第1个房间发现蜡烛难度要大、要花更多的时间。为了减少运气的影响,我们引入了房间系数,房间系数乘以所用的时间才是最后的得分。机器人找到蜡烛前搜索的房间越多,房间系数值越少,得分就越少。
搜索1个房间,房间系数为1.0。
搜索2个房间,房间系数为0.85。
搜索3个房间,房间系数为0.50。
搜索4个房间,房间系数为0.35。
机器人按照什么顺序搜索房间并不重要。重要的是机器人找到蜡烛前搜索了多少房间。有些机器人的传感器非常灵敏,能在房间门口往里一看就知道里面否有蜡烛,所以机器人接触门口白线就算机器人搜索了那个房间。重复搜索同一个房间,该房间将不被重复计算。
19、可靠性
灭火机器人的可靠性和它的快速性很重要,三次灭火都成功的机器人最后得分减10%.(最后得分是机器人两次最好成绩之和)。
三次灭火都成功的可靠性系数为0.9,否则可靠性系数为1.0。
20、安全
如果比赛裁判认为机器人的行为对人员或设备有危险,他们可以在任何时候终止比赛。参赛机器人不能使用任何易燃易爆物质。
21、减分
参赛获得成功的自制机器人,如所设计的机器人具有一定的独特性,一定的创新性,由参赛队提出申请,裁判组讨论决定给予一定的减分奖励。旨在鼓励同学们的创新能力。
22、其他
未尽事宜由大赛组委会负责解释。
附件4:机器人自主创新设计比赛规则
评选目标:智能型创新设计评选是为了鼓励同学们在机器人开发和使用中自主创新,以创新为主题,设计制作各种新颖的机器人项目,实现机器人的机械、电子、气动、软件以及传感器等方面的扩展应用,从而推动机器人应用的不断发展。
一、评审要求
1、参加活动的机器人在指定的场地、规定时间内进行比赛,由评委以创新动作的难度、完成任务的准确程度及参加者现场答辩情况来综合评分。
2、智能型机器人创新设计展示场地长2m、宽1.5m。如需道具,请参评队自备。
3、参评智能型机器人尺寸不超过1m×1m×1m,其型号、重量和数量等无任何要求。
4、各队在评比前有10分钟的准备时间;陈述和演示时间不超过5分钟;演示时,允许1名参评队员(进入场地,答辩时间为3分钟。
二、 评审标准
本项目将按组别由评委在演示当天现场评比,评审标准如下:
1、机器人设计创造性:20分。
2、机器人性能独特,外观新颖:20分。
3、表演方案设计和制作工艺:20分。
4、实用价值,系统可靠性:20分。
5、介绍、说明和答辩:20分。
三、 其它要求
参评作品必须是参评者自主开发制作的创新作品, 参评队必须提供一份正式报告,包括作品名称、选手基本情况、作品简介、研制过程、创意设计及结构搭建的新颖性、科学性、实用性、先进性和未来价值,以及自我评价、指导教师评价和参考等。